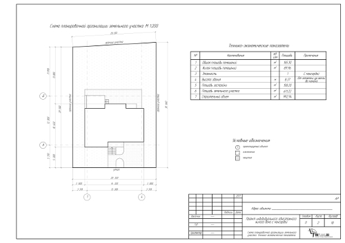
СХЕМА ПЛАНИРОВАНИЯ ОРГАНИЗАЦИИ ЗЕМЕЛЬНОГО УЧАСТКА
СПОЗУ (гЕНПЛАН)
Сроки:

От от 7 до 14 рабочих дней с момента получения всех исходных данных

Стоимость:

От 81 550 рублей

Стоимость и длительность работ по разработке раздела "Схема планировочной организации земельного участка " (СПОЗУ) зависит от сложности ТЗ и количества планируемых трансформаций в актуальном градостроительном плане и устанавливается после получения исходных данных.

Что нужно для для создания СПОЗУ:
  • личные требования касательно изменений на участке;
  • сведения о категории земли;
  • техническая информация о существующих и будущих коммуникациях;
  • действующий градостроительный план земельного участка.
спозу (генплан)
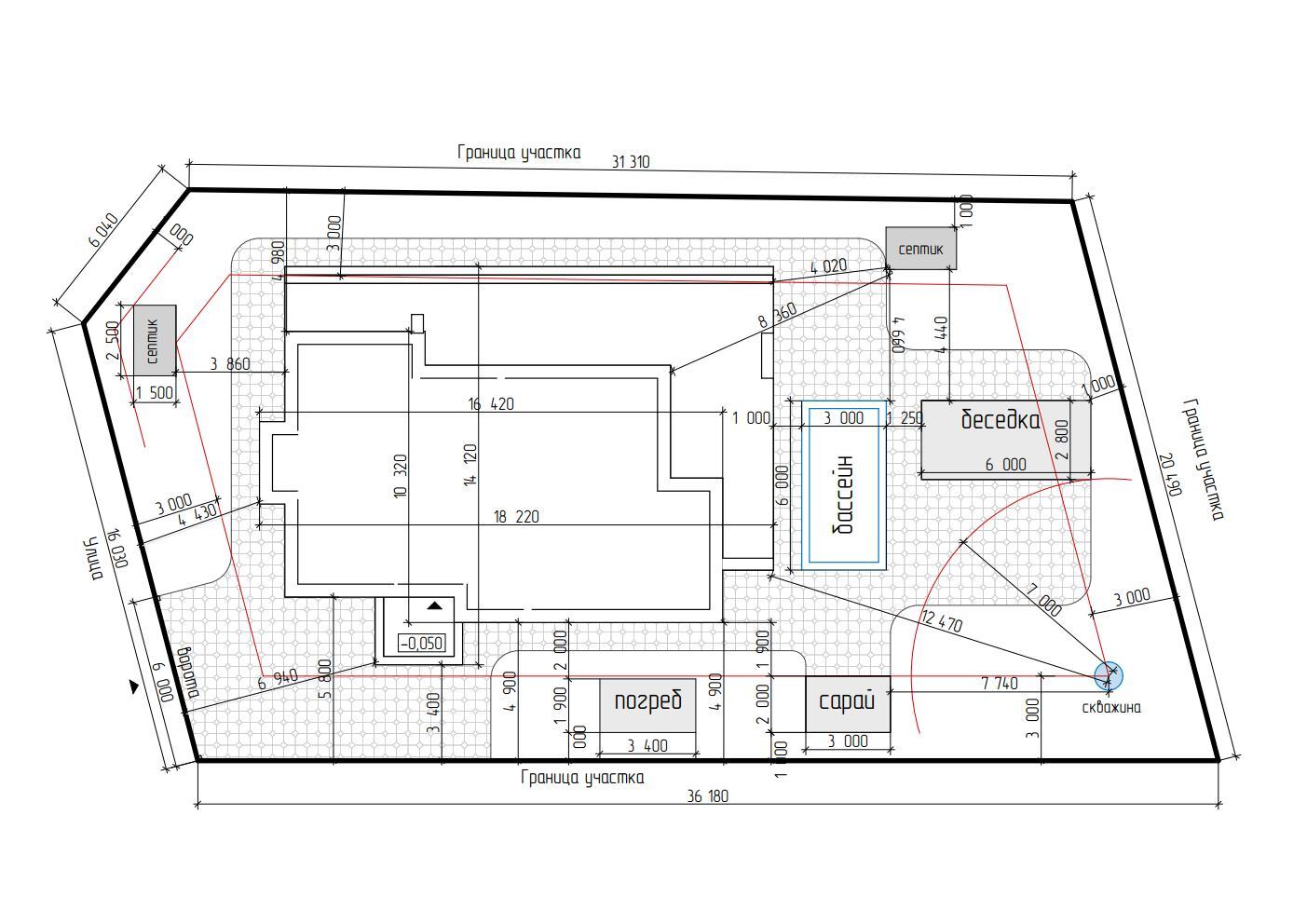
Схема планировочной организации земельного участка (СПОЗУ) (ранее "генеральный план застройки участка") - в общем смысле — проектный документ, на основании которого осуществляется планировка, застройка, реконструкция и иные виды градостроительного освоения территорий. Основной частью генерального плана (привязки дома к участку) является масштабное изображение, полученное методом графического наложения чертежа проектируемого объекта на топографический, инженерно-топографический или фотографический план территории.
Схема планировочной организации земельного участка
1. Текстовая часть.
  • Характеристика земельного участка для индивидуального жилищного строительства
  • Обоснование границ санитарно-защищенных зон (охранных зон, санитарных разрывов) объектов строительства в пределах границ земельного участка
  • Обоснование планировочной организации земельного участка в соответствии с градостроительным и техническим регламентами
  • Описание решений по благоустройству территории
2. Графическая часть.
  • Места размещения существующих и проектируемых объектов строительства с указанием существующих и проектируемых подъездов и подходов к ним
  • границы зон действия публичных сервитутов (если имеется)
  • Границы санитарно-защитных зон, охранных зон, санитарных разрывов (если имеется)
  • Решения по планировке и благоустройству земельного участка
  • условные обозначения
  • схема (совмещенный план) внешних инженерных сетей; при необходимости может быть дополнен инженерным проектом дренажа и ливневой канализации;
  • эскиз общего решения благоустройства участка; может включать проект конструкций фундамента ограждений, подпорных стенок, ландшафтных лестниц.
  • документ в текстово-графической форме, приложение к СПОЗУ. Включает в себя подробное описание всех строений участка, концептуального проектного решения и прочих важных аспектов;

Раздел оформляется согласно постановлению Правительства Российской Федерации №87 от 16 февраля 2008г.
  • "О составе разделов проектной документации и требованиях к их содержанию"
3. Пояснительная записка
Команда специалистов компании "Архитектурная мастерская Волкова" готова разработать проект организации строительства, демонтажа жилых и промышленных зданий, линейных объектов, а также провести реконструкцию уже существующих предприятий и сооружений. Разработанные нашими специалистами проекты включают современные планировочные решения и минимизацию затрат на строительство. Защита данных проектов успешно проведена как в государственных, так и в коммерческих экспертных организациях.
Получите расчёт стоимости

Другие разделы
ПОС Проект организации строительства
Разрабатывается для согласования решений реконструкции, капитального ремонта
ПОД Проекты организации демонтажа
Документ, регламентирующий проведение демонтажных работ
ППР Проект производства работ
Организационно-технологический документ, который содержит текстовое и графическое описание безопасных методов выполнения работ
ППР
От 32 610 р
ПОД
От 54 3550 р
ПОС
От 76 150 р